✨ Hei, lämpimästi tervetuloa! Parhaat tehdashinnat suoraan verkkosivultamme - nappaa parhaat diilit itsellesi!✨






Solari 5,09 × 8,59 m on täysin eristetty, parvella ja neljällä huoneella varustettu pientalo, joka on valmistettu ensiluokkaisesta pohjoismaisesta kuusesta. Mukana tulevat täydelliset eristyspaketit, kaksinkertaiset ikkunat ja ovet, bitumikattopaanut ja valinnainen 32,7 m²:n terassi ulkotiloihin.
Vaihe 1
Valitse tuote
Vaihe 2
Lisää ostoskoriin
Vaihe 3
Täytä lomake
Vaihe 4
Lähetä tarjouspyyntö
Vaihe 5
Vastataan 24 tunnin kuluessa
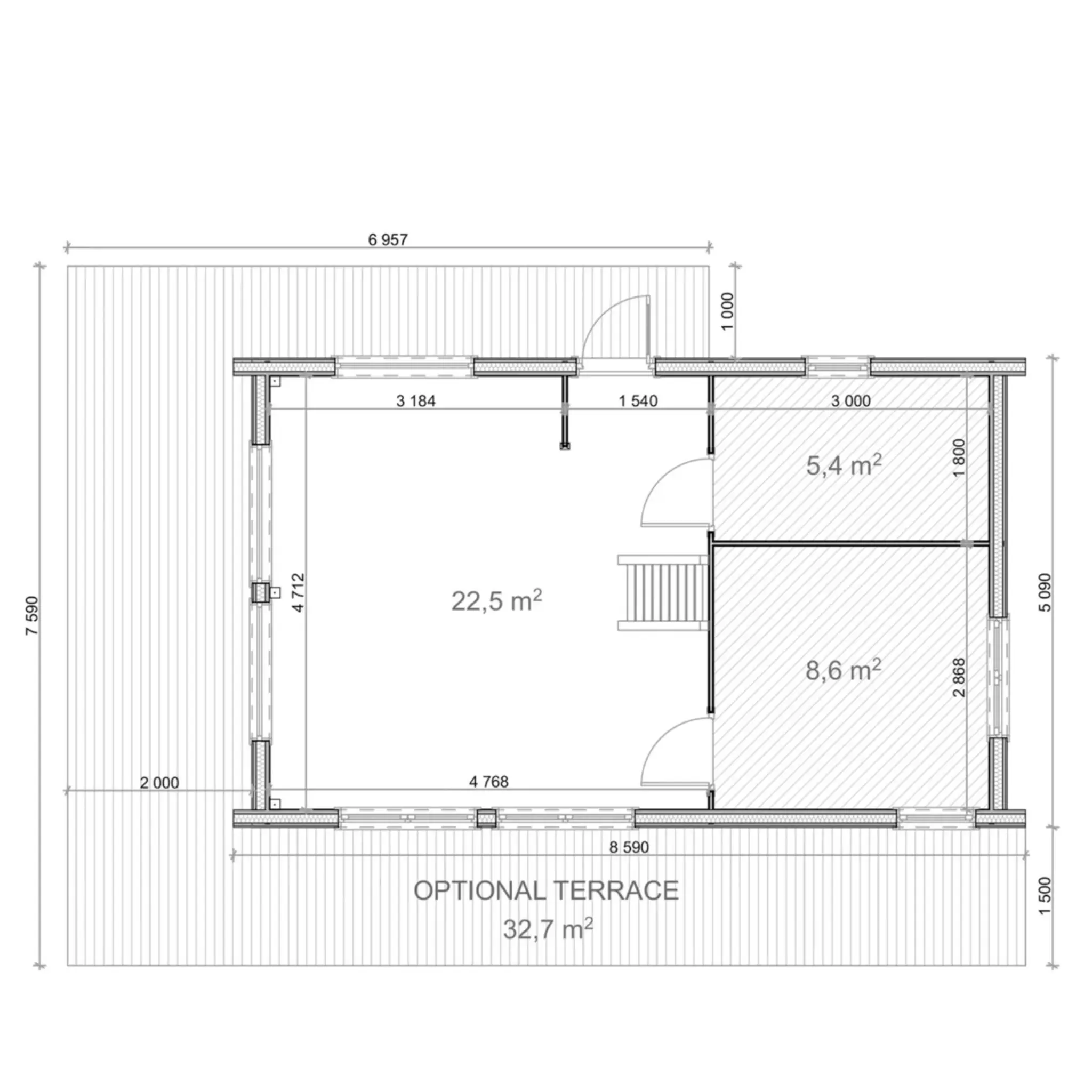
Tutustu Solari 5.09 × 8.59 m -malliin – korkealaatuiseen eristettyyn pientaloon, joka on suunniteltu moderniin asumiseen ilman kompromisseja. Sertifioidusta pohjoismaisesta kuusesta rakennettu ja mukavuutta ajatellen suunniteltu kompakti koti tarjoaa 50,6 m² sisätilaa neljässä huoneessa sekä tilavan parven (13,3 m²), joka sopii täydellisesti viihtyisän nukkumistilan tai lisäsäilytystilan luomiseen. Kodin sydän on 22,5 m² olohuone, jota täydentävät kaksi lisähuonetta (8,6 m² ja 5,4 m²), jotka voidaan muuntaa makuuhuoneiksi, työhuoneeksi tai harrastenurkkaukseksi.
4,05 m harjakorkeuden ja 30° kattokaltevuuden ansiosta talo tuntuu valoisalta ja ilmavalta, ja viisi ensiluokkaista kaksinkertaista ikkunaa ja lasitettu ulko-ovi tulvivat sisätiloihin luonnonvaloa. Kaksi täyskorkeaa paneelia (~85 × 200 cm) luovat saumattoman yhteyden ulkoilmaan, ja ulkona olevat metalliset ikkunalaudat lisäävät kestävyyttä.
Ulkona viihtymiseen voi lisätä valinnaisen 32,7 m² terassin – täydellinen kesäisiin illallisiin, joogaan tai rentoutumiseen avoimen taivaan alla.
Etsitpä sitten pysyvää asuntoa, maaseudun lepopaikkaa tai tyylikästä majataloa, Solari tarjoaa mukavuutta, kestävyyttä ja pohjoismaista muotoilua yhdessä kompaktissa paketissa.
Tekniset tiedot:
| Määrittely | Tiedot |
|---|---|
| Rakennuksen leveys × pituus | 5.09 × 8.59 m |
| Sisäpinta-ala | 50.6 m² (4 huonetta) |
| Huonejako | Olohuone 22.5 m²; Huone 8.6 m²; Huone 5.4 m²; Parvi 13.3 m² |
| Valinnainen terassi | 32.7 m² |
| Sivuseinän korkeus | 2.70 m |
| Harjakorkeus | 4.05 m |
| Katon kaltevuus (per puoli) | 30° |
| Katon pinta-ala | 50.5 m² |
| Kattolaudat | 19 mm ponttilaudat |
| Seinärakenne (sisältä → ulos) | 44 mm täyshirsiseinä → höyrynsulku → ~100 mm mineraalivilla → tuulensuojakalvo → tuuletusrako → 18–20 mm puuverhous |
| Lattiarakenne | 19 mm ponttilaudat → kantavat palkit → ~100 mm eristys → höyry-/tuulensuoja. Betonialustalla: muovikalvo, koolaukset, kivivilla tai EPS |
| Kattorakenne | Katteen pinta (esim. bitumikate) → listat ja aluslaudoitus → hengittävä kalvo → ~100 mm mineraalivilla → 19 mm ponttilaudat |
| Ohjeelliset U-arvot* | Seinät ~0.30–0.35 W/m²K; Katto ~0.23–0.28 W/m²K; Lattia ~0.30–0.35 W/m²K |
| Ovet | 1 kaksinkertaisella lasilla varustettu ulko-ovi (~160×200 cm); 3 sisäovea (~80×200 cm) |
| Ikkunat | 5 kpl: 2 täyskorkeaa lasipaneelia (~85×200 cm) + 3 vakiokokoista ikkunaa (~80–120 × 100 cm) |
| Lasitus | Ensiluokkaiset kaksinkertaiset ikkunat ja ovet |
| Materiaali | Sertifioitu pohjoismainen kuusi |
| Ulkoseinien pinta-ala | 57 m² |
| Huoneiden määrä | 4 |
Kuljetustiedot:
| Mitat | 6–8 LDM |
| Paino | 6000–7000 kg |
Katto: bitumikatteet ja aluskerros (värivaihtoehdot):

Vakiopaketti sisältää:
Lisävarusteet (ilman ALV):
Piirustukset kunnan hyväksyntää varten
Arvosteluja ei ole vielä.
No manuals available for this product.