✨ Hei, lämpimästi tervetuloa! Parhaat tehdashinnat suoraan verkkosivultamme - nappaa parhaat diilit itsellesi!✨






Tutustu eristettyyn moderniin Verno-taloon – skandinaavistyylinen koti, joka yhdistää modernin muotoilun, energiatehokkuuden ja mukavuuden. Kaksi makuuhuonetta, monikäyttöinen huone, avara olohuone, suuret lasi-ikkunat ja katettu terassi tekevät siitä täydellisen valinnan niin jokapäiväiseen asumiseen kuin rauhalliseen lomailuun.
Vaihe 1
Valitse tuote
Vaihe 2
Lisää ostoskoriin
Vaihe 3
Täytä lomake
Vaihe 4
Lähetä tarjouspyyntö
Vaihe 5
Vastataan 24 tunnin kuluessa
Eristetty moderni hirsitalo Verno yhdistää skandinaavisen muotoilun ja fiksun toiminnallisuuden: täysin eristetyt ulkoseinät (44 mm massiivihirsi + 100 mm eriste + höyrynsulku + 25 mm OSB + tuuletusrako + 19 mm pystylaudoitus), loivalappeinen epäsymmetrinen katto (~8° per sivu), joka on päällystetty bitumikatteella tai EPDM:llä, sekä suuret Premium Plus -kaksinkertaiset ikkunat, jotka tuovat runsaasti luonnonvaloa sisätiloihin.
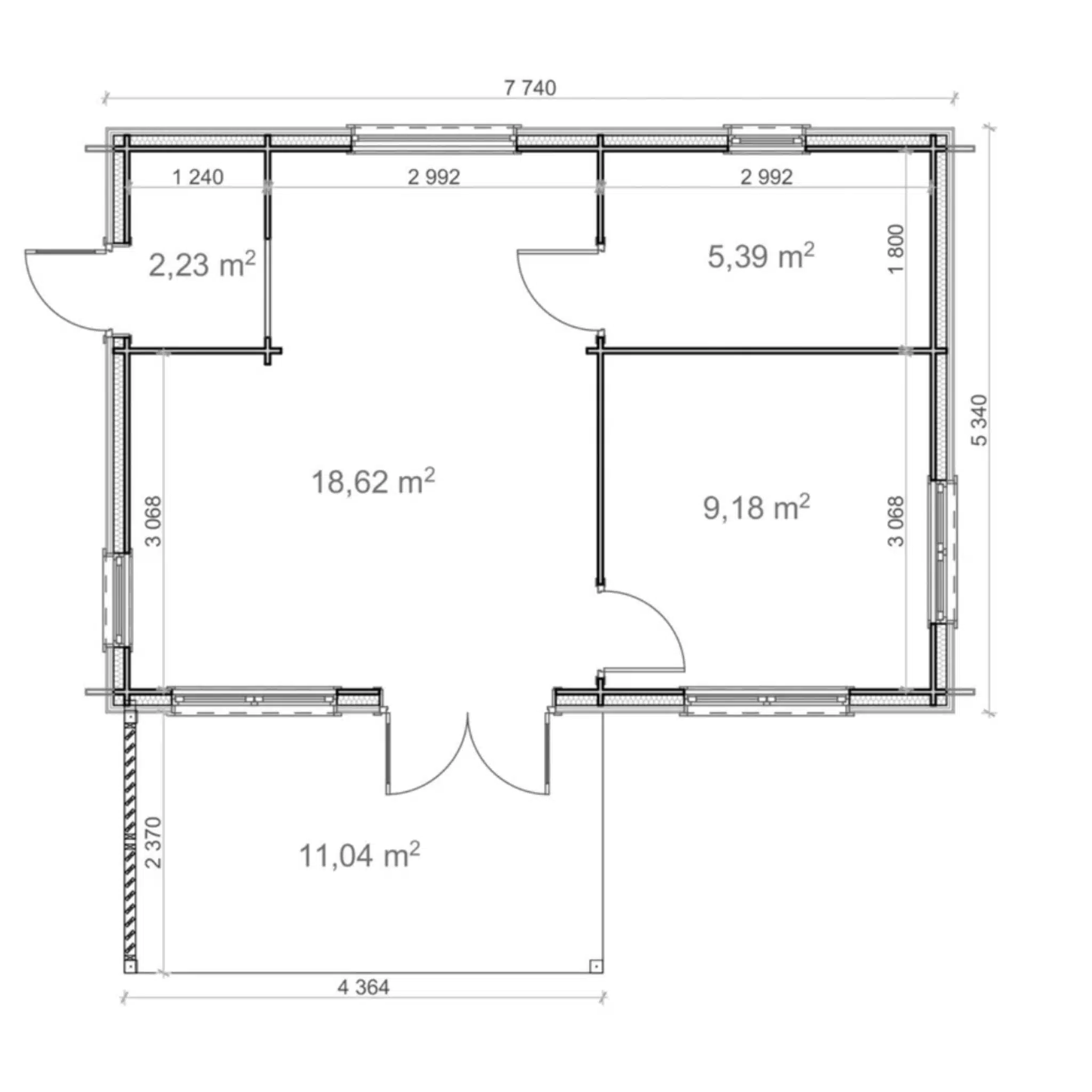
Sisätiloissa on valoisa pohjaratkaisu: olohuone 18,6 m², makuuhuone 9,2 m², monikäyttöinen huone 5,4 m², tekninen tila 2,2 m² sekä katettu terassi 11,0 m² – täydellinen ympärivuotiseen käyttöön. Seinäkorkeus on 2,65 m ja harjakorkeus 3,18 m, mikä antaa talolle modernin ilmeen, vahvan rakennuslaadun (sertifioitu pohjoismainen kuusi) sekä varman energiatehokkuuden (U-arvot: seinät ~0,30–0,35; katto ~0,23–0,28; lattia ~0,30–0,35).
| Kategoria | Tekniset tiedot |
|---|---|
| Mitat | |
| Ulkomitat (leveys × pituus) | 7,74 × 5,34 m |
| Sisäpinta-ala | 35,4 m² + 11,0 m² terassi (4 huonetta + terassi) |
| Huoneiden lukumäärä | 3h + tekninen tila 2,2 m² |
| Pohjaratkaisu | Olohuone 18,6 m²; huone 9,2 m²; huone 5,4 m²; tekninen tila 2,2 m²; terassi 11,0 m² |
| Korkeudet ja katto | |
| Seinäkorkeus | 2,30 m |
| Harjakorkeus | 3,2 m |
| Kattokaltevuus (per sivu) | 8° |
| Kattopinta-ala | 59 m² |
| Katon laudat | 19 mm ponttilaudat |
| Lämmöneristyskerrokset | |
| Seinärakenne (sisältä → ulos) | 44 mm massiivihirsi → 100 mm eriste → höyrynsulku → 25 mm OSB-levy → 25 mm tuuletusrako → hengittävä kalvo → 19 mm pystylaudoitus |
| Lattiarakenne | 19 mm ponttilaudat → kantavat palkit → ~100 mm eriste (kivivilla tai EPS) → höyry-/tuulensuoja (betonilla: muovikalvo, palkit, eriste) |
| Kattorakenne | Kattomateriaali (bitumikate tai EPDM) → listat ja aluskate → hengittävä kalvo → ~100 mm eriste → 19 mm ponttilauta |
| Arvioidut U-arvot | Seinät ~0,30–0,35 W/m²K; Katto ~0,23–0,28 W/m²K; Lattia ~0,30–0,35 W/m²K |
| Oviaukot ja materiaalit | |
| Ovet | 2 sisäovea puusta 850×1980 mm; 1 ulkoinen lasiovi 1600×1980 mm; 1 ulkoinen lasiovi 850×1980 mm |
| Ikkunat | 2 × 1700×1980 mm; 1 × 1300×1430 mm; 1 × 700×1430 mm; 1 × 850×1980 mm; 1 yläikkuna 1500×390 mm |
| Lasitus | Premium-kaksinkertaiset ikkunat ja ovet |
| Materiaali | Sertifioitu pohjoismainen kuusi |
| Muu tieto | |
| Ulkoseinän pinta-ala | ~57 m² |
Bitumikate aluskerroksella:

Vakiopakettiin sisältyy:
Lisävarusteet (hinnat ilman ALV:tä):
Arvosteluja ei ole vielä.
No manuals available for this product.