✨ Hei, lämpimästi tervetuloa! Parhaat tehdashinnat suoraan verkkosivultamme - nappaa parhaat diilit itsellesi!✨








Moderni autotallin autokatos. Loistava ratkaisu pihallesi.
Vaihe 1
Valitse tuote
Vaihe 2
Lisää ostoskoriin
Vaihe 3
Täytä lomake
Vaihe 4
Lähetä tarjouspyyntö
Vaihe 5
Vastataan 24 tunnin kuluessa
Moderni autotallin autokatos. Loistava ratkaisu pihallesi.
Tekniset tiedot:
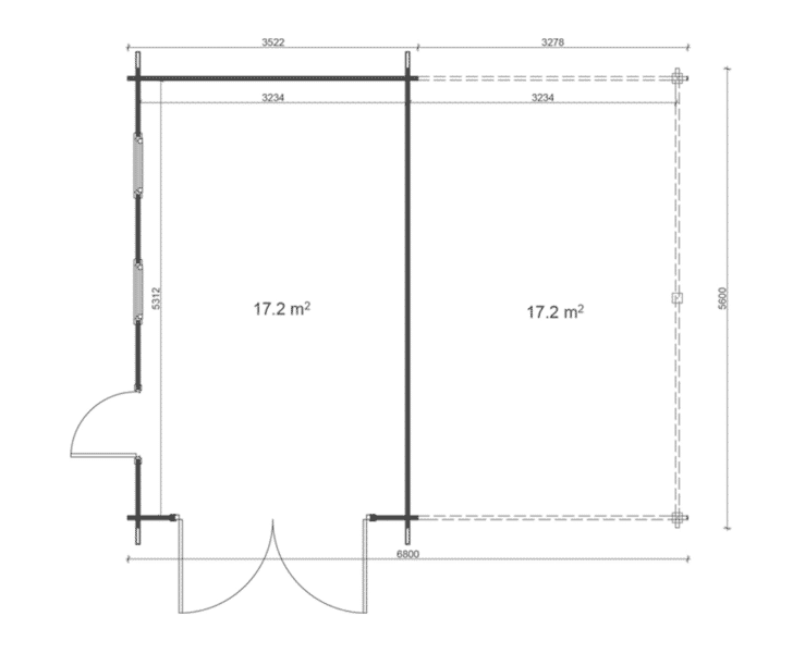
Ulkomitat (leveys x pituus): 6,8 m x 5,6 m
Sisätila: 36 m²
Harjakorkeus: 326 cm
Materiaali: Kuusi
Seinän paksuus: 44 mm
Kattomateriaalit: 19 mm paksut laudat
Lattiat: Lattiat eivät sisälly
Kattoala: 45 m²
Ovi (leveys x korkeus): 85 cm x 187 cm (1 kpl), 240 cm x 202 cm (autotallin ovi)
Ikkunat (leveys x korkeus): 70 cm x 92 cm (2 kpl)
Sulkijat: Ei sisälly
Ovet ja ikkunat teollisesti maalattu (RAL koodin mukaan): 212,8 .-
Autotallin ovi:
Puiset autotallin ovet 0 .-
Metallinen autotallin ovi 0 .-
Metallinen autotallin ovi automatiikalla 347,2 .-
(Vähennys ilman autotallin ovea: – 300 .-)
Kattomateriaali (palahuopakatto) 470,4 .-
Väri:
Musta, vihreä, punainen

Kyllästys: 481,6 .-
Arvosteluja ei ole vielä.
No manuals available for this product.